Vacker villa i Nationalromantisk arkitektur - Varsamt renoverad!
Med ett centralt läge i hjärtat av Tällberg återfinns denna vackra villa, om ca 165 kvm i boa (totalyta på 277 kvm inkl. källare), uppförd i Nationalromantisk arkitektur anno 1920! De fina kulturhistoriska värdena har tagits till vara, då villan de senaste åren genomgått en totalrenovering och ombyggnation. Flertalet av de tidstypiska detaljerna har fint bevarats såsom innertak, bröstpanel, golvbrädor, eldstäder mm. I försäljningen ingår även den angränsande fastigheten (Tällberg 18:10). Vilken är obebyggd tomt med byggrätt enligt gällande plan (detaljplan Väster gyllene hornet), om ca 1 463 kvm, arean är inkluderad i den totala tomtarean för objektet.
Villan är i två plan med hel källare. Entréplan med stora fina sällskapsytor och övre plan med tre bra sovrum, duschrum på båda planen. Källarplan med SPA-avdelning med jacuzzi och bastu samt tvättstuga. Vackra eldstäder (totalt 5 st) och wc på alla tre våningsplanen. Högt i tak och gott om ljusinsläpp genom stora vackra fönster med gamla glas skapar. Övre plan med visst snedtak. Vattenburen värme med bergvärme. Stor trädgård där dess gamla glans kan återskapas med lite kärlek och renovering/underhåll. Ytterligare byggrätt finns på fastigheten
I direkt anslutning till detta objekt finns ytterligare två tomter till salu. Fastigheterna Leksand Tällberg 18:11 och 18:75 (Tällbergsvägen 24), se separat annonsering på Hemnet.se.
Planritning



Bilder





2-plansvilla med källare | |
1920 | |
Trä | |
Trä | |
2 glas med spröjs | |
Enkupigt taktegel | |
Trä | |
Källare | |
Vattenburen värme med bergvärmepump | |
165 m² (taxeringsinformation) | |
112 m² (taxeringsinformation) | |
6 900 000 kr/bud | |
Friköpt | |
136 kWh/kvm/år. Energiklass E | |
Tällberg 18:2 har kommunalt vatten och avlopp året om. Tällberg 18:10 kan anslutas till kommunalt v/a. | |
Självdrag | |
Servitut, GA, Samfälligheter etc: Nedan gäller för Tällberg 18:2: Gemensamhetsanläggning: Leksand tällberg ga:9 Last: Ledningsrätt Vatten och avlopp, 2029-3164.1 Last: Officialservitut Väg, 20-LEJ-4209.1 Planbestämmelser: Detaljplan (2007-11-19) Väster gyllene hornet |
|
Trädgårdstomt | |
I tomtarean 3 181 kvm ingår fastigheten Leksand Tällberg 18:2 med en tomtarea om 1 718 kvm och Tällberg 18:10 med en tomtarea om 1 463 kvm. På Tällberg 18:2 är den vackra nationalromantiska villan belägen och till denna hör en trädgårdstomt med gott om plats för parkering. I trädgården på baksidan av huset i söderläge finns bl.a. en stenlagd yta med en pergola samt en liten äldre damm, där dess gamla glans kan återskapas med lite kärlek och renovering/underhåll. Den obebyggda tomten, Tällberg 18:10, angränsar i öster till Tällberg 18:2 och är belägen även den mot Tällbergsvägen. Byggrätt enligt detaljplan Väster gyllene hornet. Kommunalt v/a och el finns vid tomtgräns. Anslutningsavgifter tillkommer för köparen. |
|
Summa driftkostnad: 65 000 kr/år. Driftkostnaden fördelas enligt följande: El: 51 600 kr V/A: 9 300 kr Sotning: 300 kr Renhållning: 3 500 kr Övrigt: 300 kr I kostnaden för el ingår hushållsel samt viss uppvärmning (bergvärme). Sotning vart 3:e år. Övriga kostnader är Byföreningen. Tillkommer kostnad för fastighetsskatt, försäkring, ev. TV/bredband, ev. larm, brandskyddskontroll (vart 6:e år) samt underhållskostnader. Observera att driftkostnaderna är ägarens faktiska kostnader, vilka givetvis varierar beroende på familjestorlek och förbrukning. Ägaren använder villan som fritidsboende samt hyr ut under kortare perioder. Tillkommer kostnad även för fastighetsavgift på Tällberg 18:10. Ett pantbrev på 5 500 000 kr finns för fastigheten. Notera! Angivet taxeringsvärde i annonsen är för fastigheten Tällberg 18:2. Fastigheten Leksand Tällberg 18:10 är samtaxerad med ägarens fastighet Tällberg 18:11. Taxeringsvärde för dessa båda fastigheter är 1 140 000 kr. |
|
220, Småhusenhet, bebyggd | |
Taxeringsvärdet är 3 836 000 kr varav byggnadsvärde 2 896 000 kr, mark 940 000 kr. Värdeår: 1929. | |
1 st om totalt 5 500 000 kr. |
Entréplan:
Stentrapp leder vidare in till en rymlig hall med fint ljusinsläpp. I hallen finns också ett helkaklat duschrum med wc. Med ingång från hallen ligger det härliga köket med matplatsen centrerad mitt i rummet vid den öppna spisen. I köket finns fyra fönster varav tre vid matplatsen och ett vid spisen. I direkt anslutning till matplatsen finns arbetsdelen av köket och ä utrustat med diskho, spishäll, fläkt, diskmaskin, ugn, kyl och frys samt bra med arbetsytor och förvaring.
I den andra änden av entréplanet återfinns vardagsrummet med en öppen spis med insats centrerad i rummet och stora fönster i tre väderstreck. I passagen som sammanbinder groventrén med hallen återfinns en garderob/städskrubb, trapp till källaren samt trappen till övre plan. I direkt anslutning till köket finns en groventré mot baksidan med en trivsam taktäckt veranda i söderläge.
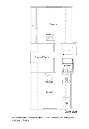
Övre plan:
Våningsplanet är fördelat på tre sovrum, duschrum med wc, en separat wc samt trapphall med fönster, varifrån de övriga rummen har ingång ifrån. På vardera gaveln finns två rymliga sovrum med stora fönster, något snedtak samt vackra fungerande kakelugnar. Mellan dessa sovrum finns ytterligare ett rum med ett fantastiskt fönster i takkupan och med glimt mot Siljan. I hallen finns ingång till helkaklat duschrum med wc. I det ena sovrummet som vetter åt den västra gaveln finns ett separat wc samt garderob under snedtaket.
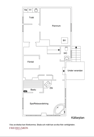
Källarplan:
Från passagen vid groventrén leder trapp ner till källaren som består av tvättstuga, pannrum, stor SPA-/relaxavdelning, separat wc samt hall. Trappen leder ner till hallen som har ingång till övriga delar av källarplanet. Till höger nås tvättstugan med tvättho, arbetsbänk, tvättmaskin och torktumlare samt ett litet fönster med betongglas. Intill tvättstugan finns ett stort pannrum med bergvärmepumpen och även detta rum har litet fönster med betongglas. I den nedre trapphallen finns ett förrådsrum, separata wc:n, samt utgång till trädgården och ingång till stora SPA-avdelningen med gott om plats för sittgrupp och är utrustat med jacuzzi, rymlig bastu med ljusramp under bastulavorna, spotlights samt öppen spis. I relaxen finns fyra källarfönster med frostat betongglas.
Renoveringar interiört, ytskikt och materialval mm:
Hela villan genomgick en varsam modernisering (totalrenovering och ombyggnation) 2020-2022, då original detaljer fint har bevarats. Alla rum väggar, tak och golv är renoverade med nya ytskikt. Alla rum har målats om, tapetseras, renoverats med enhetliga golvkulörer, nya golvlister ommålade tak samt omdisponering av källaren. Nya WC-stolar, kranar, duschar och handfat genomgående. VA stammar och elledningar och central utbytt i stort sett hela byggnaden. Alla lys-knappar utbytta.
Genomgående slipade och oljade original golv, förutom arbetsdelen i köket som har ett parkettgolv.
De kaklade duschrummen och wc har klinkergolv med el-golvvärme.
Hela källarvåningen har klinker på golv förutom pannrummet som har ett betonggolv (ej renoverat rum)
I relaxavdelningen är det klinkergolv med vattenburen golvvärme.
2 öppna spisar på entréplanet och en i källaren samt två kakelugnar på övre plan (alla fungerade).
Kök
Utrustat med spishäll, fläkt, diskmaskin, ugn och kyl/frys från 2022
Tvättstugan
Ny tvättmaskin och torktumlare från 2022.
Fastigheten är belägen i tätorten Tällberg i Leksands kommun i Dalarna och Siljansbygden, med gångavstånd till byns alla hotell, spaanläggningar och restauranger. Bra kommunikationer i Siljansbygden, både med buss, tåg och flyg (i Mora). Lanthandel finns i området. För mer information, se under rubriken dokument & länkar i annonsen.