Fannydals strandväg 21 Fannydal/Storängen
Fannydal/Storängen

Fannydals strandväg 21

212 m² 1 420 m² 53 m² 7 rum och kök 1962 19 950 000 kr/bud
Söndag 8/3   13:00-14:00
Lägg till i kalender
Obligatorisk föranmälan till Monica Cederberg. Välkomna!
Intresseanmälan

Mycket trivsam och praktisk planlösning - Ypperligt skick - Sjöutsikt!

Trivsam familjevilla i ett ypperligt skick, belägen på södervänd tomt vid återvändsväg och med fri utsikt mot Övre Järlasjön, i natursköna och barnvänliga Fannydal/Storängen! Hela fastigheten, både villan och trädgården, genomgick en totalrenovering och delvis ombyggnation 2021 tillsammans med renommerad arkitektbyrå och trädgårdsmästare/-anläggare. Trivsam och funktionell planlösning med en totalarea om 265 kvm (boa ca 212 kvm och bia ca 53 kvm). Villan erbjuder 7 rum (varav 5 st sovrum). Vardagsrum med öppen spis, matrum och stort arbetskök, allt i ett mycket härligt, stort och öppet sällskapsrum, 3 bra sovrum, badrum med wc samt separat gästtoalett på övre plan. Entréplan är fördelat på ett stort allrum (ytterligare sovrum), master bedroom, gästrum, badrum med wc, bastu, tvättstuga och teknikrum samt stort förråd, allt genomgående i mycket gott skick. Den funktionella planlösningen erbjuder även entré till övre plan från bakre delen av trädgården, då villan ligger i souterräng. Originaldetaljer varsamt renoverade. Vattenburen värme (bergvärme), FTX system för ventilation, larm och brandlarm samt Energiklass C.

Den härliga tomten har en omsorgsfullt planerad och lättskött trädgård som erbjuder fina uteplatser, grusade gångar, bra gräsytor samt vackra träd och planteringar. Hela trädgården är fint inramad av plank, staket och häckar. Gästhus med dusch och wc, eget trädäck samt med lite sjöglimt. Hela trädgården och båda byggnaderna är vackert ljussatta. Elektrisk grind, grusad uppfart, carport och parkering för ytterligare ca 2-3 bilar. Lugnt område i vacker natur med fina promenadvägar och gemensamma badbryggor i Övre Järlasjön utanför fastigheten.

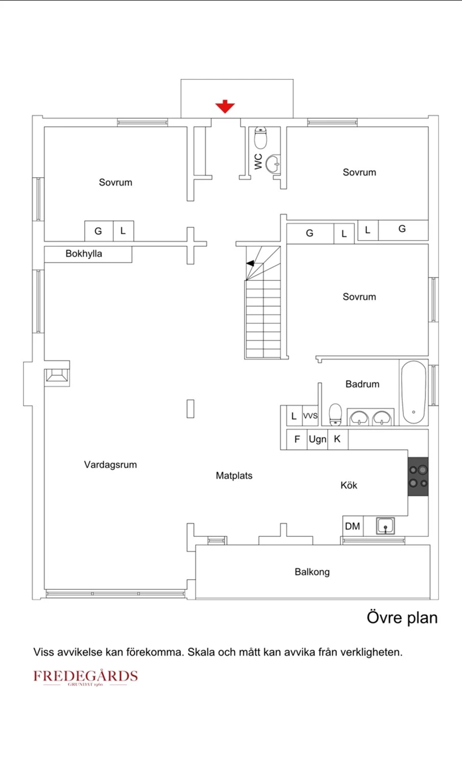
Planritning

Planlösning för Fannydals strandväg 21
Planlösning för Fannydals strandväg 21

Bilder

Fannydals strandväg 21
Fannydals strandväg 21
Fannydals strandväg 21
Fannydals strandväg 21
Fannydals strandväg 21
Visa alla bilder
Enplanshus med sluttningsvåning.
1962
Tegel/puts
Betong
3-glas, isolerglasfönsrer
Papp/koppar
Betong
Betongsula
Blåbetong
Vattenburen värme. Bergvärme
Gästhus om ca 15 kvm med stora fönsterpartier, dusch och wc (el golvvärme) samt rymligt trädäck. Beläget på baksidan av tomten i västerläge och i anslutning till uteplatsen och bakre entrén till villan.
Carport invid huset med plats för en bil, ca 18 kvm.
Villan är gediget byggt i tidstrogen 60-talsarkitektur med solida material. Hela huset har totalrenoverats och delvis byggts om under 2021 tillsammans med renommerad arkitektbyrå och Lövdals snickeri:
- Nybyggnation av carporten/komplementbyggnad
- Ombyggd planlösning på båda våningsplanen bl.a. flytt av kök, garage ombyggt till allrum, ombyggda badrum.
- Nya treglasfönster (några få isolerglas från 2010/2012) med måttbeställda rullgardiner/persienner.
- Nya altandörrar i glas och nya entrédörrar.
- Innerdörrar i original totalrenoverade
- Garderobsdörrar i original totalrenoverade
- Originaltrapp mellan våningsplanen renoverad
- Ny bergvärmepump, vvb och ackumulatortank
- Helt nya ytskikt, golv, väggar innertak
- Nymålad fasad (häng-/stuprännor, yttertak i original och notera att taket på bilderna är retuscherade i svart)
- Ny el och 3 st el-centraler med jordfelsbrytare. Nya eldon (strömbrytare, uttag mm)
- Ny golvvärme övre plan och radiatorer på entréplan (allt nytt inklusive rör/radiatorer mm).
- Installation av FTX-ventilationssystem
- Installation av larm och brandlarm
- Relining av avloppsledningar interiört.
- Provtryckning av skorsten till öppna spisen
2024:
- Nybyggnation av gästhus
2025:
- Ny uppmätning boa och bia
- För besiktning genomförd i november
- Åtgärdat tätning vid rörgenomföring på yttertaket
- Pågående långtidsmätning av radon.
7 rum, varav 5-6 sovrum
212 m² (Faktisk uppmätn norm SS 021054:2009). Den taxerade boarean är 175 kvm och biarean 84 kvm.
53 m² (Faktisk uppmätn norm SS 021054:2009)
19 950 000 kr/bud
1 420 m²
Friköpt
90 kWh/kvm/år. Energiklass C
Kommunalt vatten och avlopp.
Mekanisk till- och frånluft (FTX-system, Casa Smart)
Servitut, GA, Samfälligheter etc: Nyttjanderätt D-2023-00144172:1
Förmån: Officialservitut Väg, 01-NAC-1170.1

Planbestämmelser: Byggnadsplan (1943-09-03)
Trädgårdstomt
Hela trädgården är arkitektritad och anlagd med stenläggning, grusgångar och gräsytor och omgärdas fint av häckar, plank och staket. Två större uteplatser varav en härlig stenlagd uteplats i söder på framsidan och i direkt anslutning till entrén och en grusad uteplats på den övre delen av tomten i västerläge, för härliga grillkvällar. Möjlighet till ytterligare uteplatser på den bra planerade tomten. Hela trädgården och båda byggnaderna är vackert ljussatta

Trädgården erbjuder förutom vackra planteringar, buskar och träd även stora gräsytor med plats för barnens lek såsom klätterställning, studsmatta mm och även bra ytor för den odlings intresserade. Vattenutkastare för bevattning av trädgården.

Infart via el-styrd järngrind mellan vackra granitstolpar till fastigheten och en grusad uppfart leder upp till huset. I direkt anslutning till entrén finns en carport med plats för en bil samt plats för ytterligare 2-3 parkerade bilar på uppfarten.
Summa driftkostnad: 61 111 kr/år. Driftkostnaden fördelas enligt följande:
El: 34 361 kr
V/A: 12 773 kr
Försäkring: 13 977 kr
I kostnaden för el ingår nätavgifter, förbrukning, energiskatt, moms för värme och hushållsel (totalt 17 142 kWh/år) och i kostnaden för V/A ingår kostnad för renhållning. Tillkommer kostnad för fastighetsavgift 10 074 kr (år 2025), sotning, ev. TV/bredband, ev. larm, brandskyddskontroll (vart 6:e år) samt underhållskostnader. Notera att driftkostnaderna givetvis varierar beroende på familjestorlek och förbrukning. Nuvarande 5 personer, varav 3 barn.
220, Småhusenhet, bebyggd
Taxeringsvärdet är 12 851 000 kr varav byggnadsvärde 4 651 000 kr, mark 8 200 000 kr. Värdeår: 1962.
2 st om totalt 5 180 000 kr.

Familjevilla i tidstrogen 60-talsarkitektur gediget byggt med solida material. Lättskött trädgårdstomt i söderläge, med utsikt mot Övre Järlasjön och mot skogsmark i Erstaviks friluftsområde. Lugnt och barnvänligt område på återvändsgata. Nära till service och kommunikationer.

Entréplan (takhöjd ca 2,50 m):
Rymlig entré med klädavhängning som via en vacker glasad 60-tals dörr leder in till den öppna och ljusa hallen, som har kontakt med övriga rum på våningsplanet. Rymligt Master bedroom med stort fönsterparti mot trädgården i söder. Stort allrum, även det med stort fönster och altandörr i glas, som leder ut till den stenlagda uteplatsen på framsidan. Vidare finns ett fint gäst-/arbetsrum med fönster, tvättstuga kombinerad med teknikrum, stort badrum med spakänsla och bastu samt ett mycket rymligt förråd.

Övre plan (takhöjd ca 2,60 m):
Hela våningsplanet har en genomgående planlösning och nås via trappen (i original) från nedre hallen till våningsplanets sällskapsytor. Den stora och ljusa sällskapsdelen är fördelat på ett vardagsrum med generösa ytor, matrumsdel samt ett rymligt och platsbyggt och fullt utrustat arbetskök. Stora fönsterpartier och altandörrar i glas till balkongen i söderläge ger ett fint ljusinsläpp samt en fantastisk vy mot trädgården och fri sjöutsikt. I direkt anslutning till sällskapsdelen finns ett bra sovrum med fönster mot öster samt ett rymligt badrum med fönster. Vidare från sällskapsdelen, via en vacker originaldörr i glas, nås en sovavdelning med två bra sovrum och ytterligare en entré, som leder ut till övre delen av trädgården. Mellan sovrummen, med ingång från en mindre hall, finns en gästtoalett med fönster.

Ytskikt och materialval:
- GOLV: Genomgående nya parkettgolv i tidstypiskt 60-tal i alla rum, hallen och köket , från Tarkett (modell Ek Soho). I båda entréhallarna ligger det stora klinkerplattor och i badrum/wc är det kakelgolv. Tvättstugan/teknikrummet samt förrådet har målat betonggolv.
- VÄGGAR/INNERTAK: Gipsade innerväggar och tak som målats i ljust sobra färgval.
- KÖK: Hela köket är platsbyggt och har anpassats i grunden från ett Ballingslövskök med hjälp av Lövdals snickeri. Luckor i ekfaner samt bänkskivor i klinker från Terazzo, högre bänkhöjd ca 95 cm. Köket är fullt utrustat med integrerad kyl, frys och diskmaskin från NEFF. En bred spis med induktionshäll och två ugnar. En separat inbyggd ugn med ångfunktion från Bertazzoni samt fläkt med spiskåpa från Röros Hetta.
- TVÄTTSTUGA/TEKNIKRUM: Målat betonggolv och målade väggar. Tvättmaskin och torktumlare, arbetsbänk med tvättho. Bergvärmepump, varmvattenberedare och ackumulatortank.
BADRUM: På entréplanet: Klinkergolv, stora kakelplattor från Azuma och målade väggar samt är utrustat med badkar, dubbla duschar varav en takdusch, vägghängd wc, brett tvättställ med två kranar i kommod samt infällda spotar i tak. Kranar och duschset från HansGrohe och övrigt från Duravit.
På övre plan: Klinkergolv, kakelklädda väggar från Slate Grigio samt delvis målade väggar. Inbyggt badkar, vägghängd wc, brett tvättställ med två kranar i kommod, handduksvärmare samt infällda små spottar i tak. Kranar och duschset från HansGrohe och övrigt från Duravit.
- BASTU: Klinkergolv med löstagbar trätrall, väggar och tak klätt med träpanel, lavar i trä samt infällda små spottar i tak. Bastudörr i mörkt glas och ett bastuaggregat (el).
- GÄSTTOALETT: Klinkergolv, mosaikbeklädda och delvis målade väggar, vägghängd wc samt tvättställ. Kran från HansGrohe och wc-stol från Duravit.
- FÖRRÅD o GARDEROBER - I två av sovrummen på övre plan är det renoverade original garderober och i det tredje sovrummet nya fristående garderober. Master bedroom på entréplanet har skjutdörrar till en större ny garderob. Förvaringsutrymme under trappen i hallen och ett mycket rymligt förrådsrum på entréplanet. Här finns även Ventilations aggregat (FTX-Casa Smart) och en extra frys.

Övrigt:
- Genomgående vattenburen värme. Golvvärme på hela övre planet och i badrummet på entréplanet. Radiatorer i övrigt på entréplanet.
- Måttbeställda rullgardiner/persienner från MaxGardiner Norden i bl.a. alla sovrum.
- Ljusskensystem i vardagsrum och allrummet på entréplanet samt all utvändig belysning från Norlux.
- Larm finns installerat, både för inbrott och brand.
- Fastigheten är ansluten till fiber.

Fannydal/Storängen är ett mycket populärt och naturnära område, centralt beläget i Nacka! Fastigheten ligger med direkt närhet till Övre Järlasjön. Där man på vintern kan åka skridskor eller skidor och på sommaren bada, fiska kräftor eller paddla kajak.

I närområdet är det god tillgång till service, bl.a. nära till både Nacka Forum och Sickla köpkvarter. Närmaste busshållplats finns på drygt 1 km avstånd, med ett flertal bussar till Slussen. (Saltsjöbanan är under renovering och beräknas att öppna igen 2028).
Bra cykelväg mot stan, ca 25 minuter till Slussen. Närhet till Erstaviks friluftsområde, Nyckelviken, Järlasjön mm. Golfbanor finns i området, Saltsjöbadens Golfbana eller Nacka Golfklubb. På gångavstånd ligger också Saltsjö-Duvnäs, som med sitt läge vid vattnet, har direktkontakt ut till Stockholms skärgård, via Stäket/Fladern och Skurusundet.

Intresseanmälan

Dina uppgifter förblir konfidentiella och stannar hos oss.