Etagevåning - Två terrasser i sydväst - Hiss in i våningen
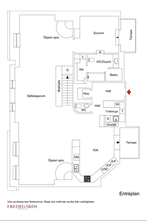
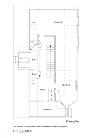
Välkommen till denna synnerligen väldisponerade vindsvåning i etage med två terrasser och hiss direkt till hallen. Entréplanet disponerar generöst sällskapsrum och kök med utgång till terrass i soligt sydvästläge, rymligt master bedroom med anslutning till badrum med bastu och våningens andra terrass, även den i soligt sydvästläge. På entréplan finns även gäst-wc i hallen samt tvättstuga. På över plan återfinns tre bra sovrum, allrum samt generöst badrum. Välskött fastighet, förening med god ekonomi.
För mer information kontakta Björn Strömberg 070 60 50 999.
Planritning


Bilder

1601/261 | |
6 av 6 | |
Finns | |
Finns | |
247 m² (föreningens information) | |
5 rum och kök | |
6,9% | |
732 723 kr | |
Enligt beräkning från årsredovisning 2024 | |
8 620 kr/mån. Inkl värme, vatten, kabel-tv samt bredband | |
Summa driftkostnad: 800 kr/mån. Driftkostnaden fördelas enligt följande: El: 600 kr Försäkring: 200 kr Försäkringskostnaden kan variera beroende på innehållet i försäkringen. Kostnaden för hushållsel varierar beroende på individuell användning. |
Generös rymd - Ljusinsläpp från fem spröjsade fönster - Två fungerade öppna spisar - Spotlights i taket - Delvis öppen planlösning mot köket - Platsbyggd bokhylla - Klinkergolv/furutiljor
Rymligt barkök - Ljusinsläpp från spröjsat glasparti med utgång till terrass med infravärme och markis i soligt sydväst läge - Maskinell utrustning Miele bestående av kyl, frys, häll, ugn, mikro, fläkt samt diskmaskin - Matplats för 6-8 personer - Spotlights i taket - Vinförvaring - AC - Klinkergolv/furutiljor
Generös rymd - Ljusinsläpp från spröjsat glasparti med utgång till terrass med markis i soligt sydväst läge - Pardörrar - Anslutning till badrum - Klinkergolv/furutiljor
Helkaklat badrum med klinkergolv - Tvättställ med kommod - Vägghängd wc - Dusch med glasvägg - Bastu - Anslutning till Walk in Closet - Spotlights i taket
Tvättställ - Wc - Klinkergolv - Anslutning från hallen
Diskho -TM/TT från Miele samt torkskåp från Cylinda - Städskåp - Klinkergolv
Välkomnade hall - Platsbyggd klädförvaring - Ståldörr från trapphuset - Hiss - Säkerhetsdörr mot lägenheten - Klinkergolv
Generös rymd - Ljusinsläpp från två fönster och takfönster - Platsbyggd garderob med skjutdörrar - Breda furutiljor
Rymligt sovrum - Ljusinsläpp från fönster - Breda furutiljor
Ljusinsläpp från fönster - Tre platsbyggda garderober - Breda furutiljor
Helkaklat badrum delvis med mosaik - Klinkergolv - Separat wc med tvättställ och takfönster - Separat dusch - Badkar -Ljusinsläpp från fönster
Trappa - Klinkergolv
Till våningen hör ett källarförråd om ca 9 kvm
Flerbostadshus | |
1913 | |
Fjärrvärme/bergvärme | |
Bostadsrätt | |
76 kWh/kvm/år. Energiklass C |
Föreningen är en äkta bostadsrättsförening. I föreningen finns 27 lägenheter och 5 lokaler.
Brf Lövsångaren 4 förvärvade fastigheten 1985 och består av 27 lägenheter upplåtna med bostadsrätt och 5 hyreslokaler. Fastigheten har två trapphus med adresserna Bragevägen 21 och Odengatan 19.
1994 - Byte av elstigare
1995 - Stambyte (avloppsstammar)
2002 - Omputsning av fasaden mot gården samt installation av balkonger
2003 - Ommålning av fönster och ommålning av yttertak
2005 - Byte av värmeundercentral
2005 - Installation av säkerhetsdörrar
2005 - Högtrycksspolning av samtliga avloppsstammar
2005 - Slipning av golv i entréer och trapphus
2007 - Renovering och ommålning av trapphus och entréer, renovering och återställning av hissar till ursprungligt utseende
2009 - OVK
2009 - Delvis omläggning av taket åt Bragevägen
2010 - Högtrycksspolning av samtliga avloppsstammar
2014 - Sanering av källarlokal, omgjutning av golv, iordningställande av nya förråd
2015 - Installation av bergvärmeanläggning
2015 - Ny torktumlare
2015 - Kollektiva internettjänster installerade: Internet, digital TV och digital telefoni
2016 - Målning av samtliga fönster och renovering/utbyte av skadade
2016 - Högtrycksspolning av samtliga avloppsstammar
2016 - Ny tvättmaskin i tvättstugan
2017 - Renovering av hissen Odengatan. Byte från Otis till Hissen AB
2017 - Dekorationsbelysning i bägge portarna
2017 - Övervakningskameror i bägge portarna
2017 - Ny trädgårdsmöbel till gården
2018 - Ny maskin/motor till hissen på Odengatan monterad
2019 - Slipning av golv i entréer och trapphus
2019 - Lokalen invid porten till Odengatan uthyrd till Valhallabageriet
2019 - Rengöring av balkonger och inoljning av trall
2019 - Renovering av målning i entréerna
2020 - Installation av automatisk stängning av entréportarna
2020 - Ny energideklaration
2021 - Högtrycksspolning av avloppsstammar
2022 - Byt lås och nycklar till allmänna utrymmen
2022 - Takarbete samt tätning
2022 - Ny ventilationsanläggning till 1 vindsvåning
2023 - Renovering av soprum och förråd
2023 - Installerat molnbaserat styrsystem för uppvärmning av fastigheten
2023 - Genomgång och brandsäkring fasigheten
2023 - Uppgraderat ventilationsanläggningen hos lokalhyresgäst
2023 - Installerat ny ventilationsanläggningen hos lokalhyresgäst
För närvarade pågår förberedande arbete för renovering av gården, byggstart hösten 2025 alt våren 2026. I övrigt löpande underhåll.
Fastigheten är fullvärdesförsäkrad hos Trygg Hansa och i försäkringen ingår styrelseansvar och försäkring mot ohyra.
Föreningen har tecknat ett ”kollektivt avtal” med Telia som omfattar alla lägenheter och innebär att alla har 500/500 Mbit internet, TV över internet med ca 25-30 kanaler (”lagompaket”) och IP-Telefoni. Kostnaden för abonnemanget är för närvarande 310 kronor per månad och är inkluderad i avgiften.
Till medlemmarnas förfogande finns tvättstuga i källaren med ingång från Bragevägen med två tvättmaskiner, torktumlare, torkskåp och mangel. Gemensam innergård med möbler.
Föreningen godkänner ej flytt av badrum och kök.
Föreningen tillåter juridisk person som köpare: Nej
Föreningen äger marken: Ja.