

Bostadsrättslokal - Attraktivt belägen mellan Karlaplan och Strandvägen
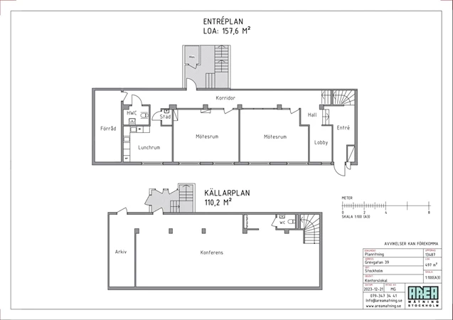
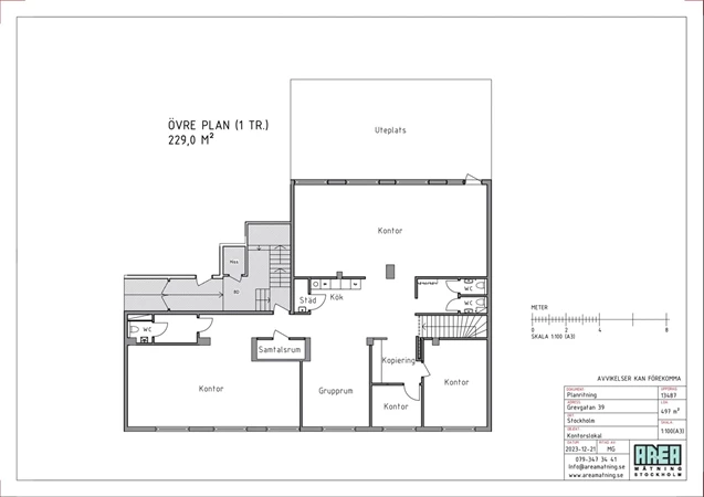
Nu ges möjligheten att förvärva en ljus, nyrenoverad bostadsrättslokal med utmärkt läge mellan Karlaplan och Strandvägen. Lokalen, om ca 497 m² LOA, är fördelat på tre våningsplan (med separata entréer) och erbjuder stora, ljusa arbets-/representations- och konferensytor samt ett flertal separata arbetsrum. Lokalen genomgick en omfattande renovering under 2023 vilket bl.a. innefattade renovering av kök, våtutrymmen m.m. Fullutrustat kök, pentry och fem separata wc. Elegant huvudentré från Grevgatan. Garage med laddstationer, f.n. ingen kö. Garaget ligger i nära anslutning till lokalens nedersta plan. Juridisk person får förvärva. Välförvaltad Brf med låg belåning. Fiber.
Planritning


Bilder





22 | |
497 m² (enl. uppmätning (SS21054:2020)) | |
8 rum och kök | |
18,164% | |
18,16331% | |
745 634 kr | |
17 293 kr/mån. inkl. värme, VA. Erlägges kvartalsvis. | |
35 000 000 kr/ |
Flerfamiljshus | |
1969 | |
Fjärrvärme | |
Bostadsrätt | |
85 kWh/kvm/år. Energiklass D | |
Mekanisk ventilation. |
Bostadsrättsföreningen Vildsvinet 23 är en s.k. "äkta" förening som förvärvade fastigheten 1994. Byggnaden uppfördes 1969 och innehåller 21 lägenheter och en kontorslokal upplåtna med bostadsrätt. Garage i huset med laddstationer, f.n. ingen kö. Byggnadens area är c:a 2 568 m² (enligt ÅR), varav ca 1 860 m² utgör boyta.
Solid Brf med låg belåning om ca 2 073 kr/m² (enligt ÅR). Väl omhändertagen fastighet där flera större renoveringar har genomförts under 2000-talet, bl.a. omputsning av fasad, hissrenovering, installation av nya säkerhetsdörrar och diverse partiella stambyten. För mer information om genomförda och kommande renoveringar samt föreningen generellt, vänligen se föreningens årsredovisning.
Byggnaden uppfördes av byggmästare Berger Sten Byggnadsfirma AB, efter ritningar av Gunnar Bentele.
Lokalens indirekta nettoskuldsättning är ca 745 634 kr (enl. ÅR 2022).
Överlåtelseavgift (2,5 % av gällande prisbasbelopp) samt eventuell pantsättningsavgift (1,0 % av gällande prisbasbelopp) tillkommer för köparen.
Föreningen tillåter juridisk person som köpare: Ja.